Sold
Gillott Rd, West Midlands
Gillott Rd, Birmingham, West Midlands, B16 0RU
  • £425,000

Overview

Property ID: HZ26048932
  • 0
  • Bedroom
  • 0
  • Bathroom

VIdeo

Floor Plans

image

Description:

Description

DESCRIPTION

The OPA are pleased to present this freehold Block of 5 x Self Contained Flats – Sold As Ready Made Investment and generating £2108.33 pcm /£25,299 p.a rental income

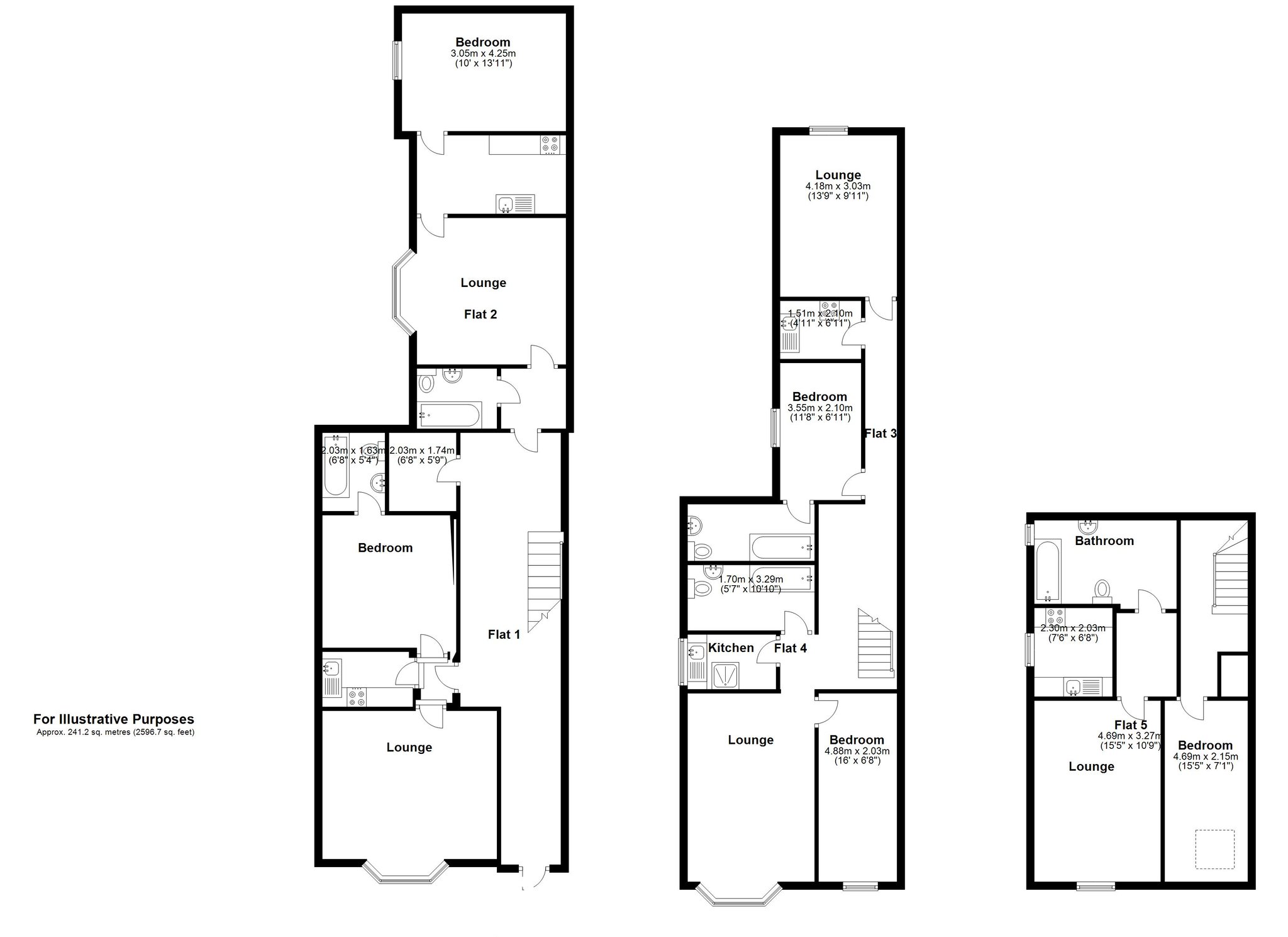
ACCOMMODATION

Accommodation:

Ground Floor

Reception Hall,

Flat 1: Entrance Hall, Lounge: 4.57m x 3.82m, Kitchen, Bedroom (Double): 3.44m x 3.27m, Bathroom with bath, wash basin and WC

Flat 2: Bathroom with bath, wash basin and WC, Lounge: 3.79m x 3.55m, Kitchen, Double Bedroom: 4.25m x 3.05m,

First Floor

Stairs and Landing

Flat 3: Entrance Hall, Bedroom: 3.58m x 2.08m, Bathroom with bath , wash basin and WC, Kitchen, Lounge: 4.16m x 3.10m,

Flat 4: Lounge: 4.56m x 3.26m, Kitchen, Bedroom: 4.56m x 2.07m, Bathroom with bath, wash basin and WC

Second Floor

Flat 5: Stairs and Landing, Lounge: 4.66m x 3.29m, Bedroom: 4.69m x 2.14m, Kitchen, Bathroom with bath, wash basin and WC

Outside:

Front: Walled foregarden

Rear: Yard and garden

TENURE

The property is freehold and is sold subject to the following tenancies and generating £2108.33 pcm /£25,299 p.a rental income

Flat1 – £425pcm

Flat 2 – £475 pcm

Flat 3 – 368.33 pcm

Flat 4 – £450 pcm

Flat 5 – £390 pcm

LOCATION

The property is situated within Edgbaston, home to the much-enjoyed Reservoir, Summerfield Park and a variety of schools.

The location boasts excellent transport links to the City Centre via various frequent bus routes, and two main road arteries via Hagley Road and Dudley Road.

The area has several developments underway or planned to include the Metro Tram link via Hagley Road, the new Midland Metropolitan Hospital, as well as a transport improvement scheme for Dudley Road.

Council Tax – We Understand each flat is Band A

EPC :

Flat 1: E

Flat 2: E

Flat 3: C

Flat 4: D

Flat 5: D

VIEWINGS

Please contact The Online Property Agency for viewings.

BUYERS FEE

Buyer’s Reservation Fee of 2% (inclusive of VAT) of The Purchase Price. Minimum Fee £2400. T&Cs apply.

The OPA’s “Secure It Now Exclusivity Package”

This property is being offered under The OPA’s “Secure It Now Exclusivity Package”

This is an innovative secure and straightforward way to purchase this property.

Here are the benefits for you:

• Secure your dream property straight away

• Properties are realistically priced

• Similar to a “normal” or “conventional” sale with a few measures to protect the buyer and the seller

• Focuses on speed

• Mortgage buyer friendly

• Suitable for first time buyer

• Mortgage buyers and cash buyers compete on equal terms

• No competitive bidding

• No risk of being gazumped

• Minimises risk of fall throughs

Secure It Now Exclusivity Package – How does it work?

Our sellers are motivated and willing to price their properties competitively in order to ensure a fast and secure sale.

You can now secure the purchase with a buyer’s “Secure It Now Exclusivity fee “ of 2% which includes :

• A legally binding contract granting the buyer exclusive rights to purchase the property within a given timeframe (usually 56 days / 8 weeks )

• Paying the Exclusivity Fee ensures that the seller takes their property off the market as soon as the sale is agreed and reserves it exclusively for you.

• This prevents the risk of gazumping and the

• helps you avoid losing money and wasting time which most buyers like you may face with the traditional estate agent’s approach.

• You get a fixed exclusivity period (approximately 8 weeks) to complete, safe in the knowledge that you will not be gazumped or outbid by another buyer.

Step 1 – Register your interest

Step 2 – Sort out your finances

Step 3 – Arrange a viewing / Virtual Tour

Step 4 – Make an offer

Step 5 – Secure your purchase using our buy and Secure It Now Exclusivity package

Step 6 – Exchange and completion

Next Steps – Do Not Miss Out –

Please note this is a realistically priced property and is likely going to create a fair amount of buying interest. If you’re interested in buying this property, we’d urge you to contact us immediately to avoid losing out.

Please note this is a non-refundable exclusivity fee in addition to the purchase price.

MONEY LAUNDERING REGULATIONS – Intending purchasers will be asked to produce identification documentation at a later stage and we would ask for your co-operation in order that there will be no delay in agreeing the sale. 2: These particulars do not constitute part or all of an offer or contract. 3: The measurements indicated are supplied for guidance only and as such must be considered incorrect. 4: Potential buyers are advised to recheck the measurements before committing to any expense. 5: All descriptions, dimensions, references to condition and necessary permission for use and occupation, and other details are given without responsibility and any intending purchasers or tenants should not rely on them as statements or representations of fact but must satisfy themselves by inspection or otherwise as to the correctness of each of them; 6: No persons in the employment of The OPA has any authority to make or give any representation or warranty whatever in relation to this property. No services, fixtures, fittings or appliances, including central heating, have been tested by the Agent at the time of printing. All references to parts of the fabric, material, decoration, external or internal features or grounds of the property are made without any warranty as to their conditions or effectiveness. Where definite checks have been made, such results will be made clear at the appropriate place in the particulars of sale. Every effort has been made by the Agents to obtain accurate information from the correct sources. However, intending purchasers and other readers are asked to make their own arrangements regarding verification of any statements expressed in these particulars of sale.

Any reference to, or use of any part of the property is not a statement that any necessary planning, building regulations or other consent has been obtained. All photographs shown are indicative and cannot be guaranteed to represent the complete interior scheme or items included in the sale. No person in our employment has any authority to make or give any representation or warranty whatsoever in relation to this property.

Please be advised that this property may have been owned by the current seller for under six months, or the seller may have the exclusive right to sell the property. If you require any further clarification please speak to a representative of The OPA

Misrepresentation Act 1967: The OPA for themselves and for the vendors or lessors of this property whose agents they are, give notice that: (1) These particulars do not amount to, nor amount to any part of, an offer or contract. (2) None of the statements contained in these particulars should be relied on as statements or representations of fact, therefore all prospective purchasers or tenants must satisfy themselves as to their accuracy.

Contact Information

View Listings

Enquire About This Property

Similar Listings

Compare listings

Compare
The Online Property Agency
Privacy Overview

This website uses cookies so that we can provide you with the best user experience possible. Cookie information is stored in your browser and performs functions such as recognising you when you return to our website and helping our team to understand which sections of the website you find most interesting and useful.