For Sale
Glenthorne Avenue
Glenthorne Avenue, Worcester, WR4 9TT
  • £100,000

Overview

Property ID: HZ28700608
  • 0
  • Bedroom
  • 0
  • Bathroom

Floor Plans

image

Description:

image

Description:

image

Description:

Description

DESCRIPTION

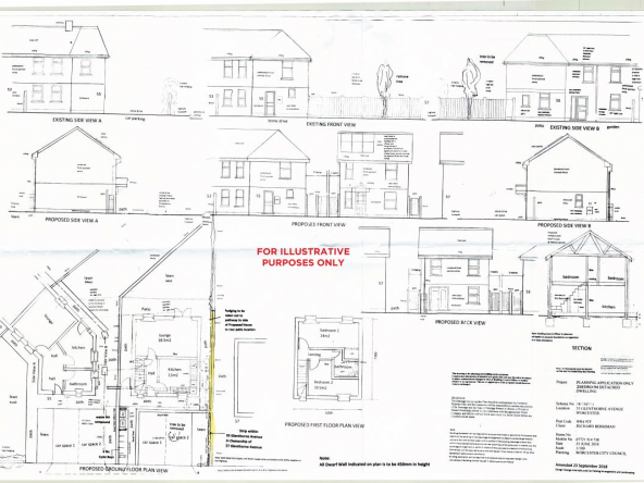
The OPA are pleased to present an exceptional opportunity to acquire freehold parcel of land on Glenthorne Avenue, which comes with planning permission for a new build 2-bedroom detached house. Don’t miss out—contact The OPA today for the property pack and discover all the details.

For more information, refer to the planning portal application number: 21/01095/FUL.

LOCATION

This land is situated in a desirable residential area along Glenthorne Avenue, in close proximity to Gorse Hill and Elbury Mount Local Nature Reserve in Worcester, approximately 2 miles to the north east of Worcester city centre. The motorway network is accessible via Junction 6 of the M5 Motorway, which is about 2.5 miles away. Once developed into a 2-bedroom residential detached house, this location offers excellent proximity to various food takeaways, supermarkets, shops, and amenities, along with great access to public transportation.

TENURE

This is a freehold land.

We understand that the vendor has already started the footings.

SERVICES

Services are believed to be available within the vicinity of the site; however, interested parties should independently satisfy themselves as to the availability and suitability of any services for their Specific requirement.

PLANNING

Please refer to planning reference 21/01095/FUL.

Worcester City Council granted planning permission (Ref 21/01095/FUL) for a two-bedroom detached house on 30th November 2022, subject to certain conditions. Interested parties should conduct their own enquiries with the Local Planning Authority and independently verify the suitability of the property for any proposed use or development.

VIEWINGS

Please contact OPA for viewings.

MATERIAL INFORMATION

The OPA have taken reasonable precautions and exercised all reasonable due diligence by asking the Seller of the Property to provide us in writing a declaration of material information regarding a property to comply with the Consumer Protection from Unfair Trading Regulations 2008. However, certain information may be unavailable and/unknown. Any buyer must carry out their own due diligence and rely on their own searches investigations and enquiries in respect of all matters relating to their proposed purchase of this property, to enable them to make an informed transactional decision before proceeding to entering in to the exclusivity agreement on this property

ANY RESTRICTIVE COVENANTS, ANY EASEMENTS, SERVITUDES, WAYLEAVES, ANY PUBLIC RIGHTS OF WAY ACROSS PROPERTY OR BOUNDARIES

Refer to property pack

ANY FLOODING IN LAST 5 YEARS

Not known.

IS THE PROPERTY LISTED?

NO

CONFIRM EXISTENCE & NATURE OF ANY KNOWN PLANNING OR PROPOSALS FOR DEVELOPMENT

PROERTY ACCESSIBILITY – ANY STEP FREE ACCESS INC RAMPS/ LIFTS?

NO

ANY WET ROOM/ LEVEL ACCESS SHOWER

NO

IS THE PROPERTY KNOWN TO BE ON A COALFIELD/ MINING OR DIRECTLY IMPACTED BY EFFECT OF OTHER MINING ACTIVITY

NO

LEASEHOLD PROPERTIES ONLY (LEASE LENGTH)

N/A

LEASEHOLD PROPERTIES ONLY (GROUND RENT)

N/A

LEASEHOLD PROPERTIES ONLY (SERVICE CHARGE)

N/A

ANY OTHER MATERIAL INFORMATION – INFORMATION THAT MAY AFFECT THE AVERAGE CONSUMER’S DECISION MAKING

Refer to pack.

AGENT NOTES

Draft details, awaiting vendor approval.

BUYERS FEE

Buyer’s Fee of 2% of The Purchase Price, subject to Minimum Fee £3999 (whichever greater). All fees inclusive of VAT. T&Cs apply.

Please request information pack, Buyer’s Guide & FAQs.

You will be required to enter into an “Exclusivity Agreement” with the Seller, granting you the Buyer the Exclusive right to purchase the property within the exclusivity period.

Please note the Buyer’s Fee is a non-refundable unconditional Exclusivity Fee in addition to the purchase price payable to the Agent upon offer acceptance.

The fee is not subject to a cooling off period and is non-refundable save in accordance with the terms stated in the exclusivity agreement

Upon offer acceptance you will not be required to exchange contracts, but will be granted an “exclusivity period” in order to exchange and complete on the transaction. This timescale will generally be 8 weeks, but will be specified in the Exclusivity agreement. (Please note we may be able to negotiate the timeframe, so please discuss with your OPA representative).

This is a flexible and buyer friendly method of purchase. By signing the Exclusivity Agreement and paying the Buyer’s Fee, this secures the transaction and takes the property off the market.

By paying your fee, that amount may be considered as part of the chargeable consideration for the property and be included in the calculation for stamp duty land tax liability.

The OPA’s “Secure It Now Exclusivity Package” – this is a legally binding agreement between you are the seller. When the offer is accepted, the buyer pays the Exclusivity Fee to the Agent and enters into an “Exclusivity agreement with the Seller”, granting the buyer an exclusivity period, which is usually upto 8 weeks to complete on the purchase of the property. During the exclusivity period, the buyer has the exclusive right to purchase the property, no other offers can be accepted and during this period buyer must complete the sale transaction. If the buyer fails to complete in this period, the fee is non-refundable.

This property is being offered under The OPA’s “Secure It Now Exclusivity Package”

This is an innovative secure and straightforward way to purchase this property.

Here are the benefits for you:

• Secure your dream property straight away

• Similar to a “normal” or “conventional” sale with a few measures to protect the buyer and the seller

• No competitive bidding

• No risk of being gazumped

• Minimises risk of fall throughs

Secure It Now Exclusivity Package – How does it work?

You can now secure the purchase with a buyer’s “Secure It Now Exclusivity Agreement. By entering into the exclusivity agreement and paying the Exclusivity Fee, this buys:

• A legally binding contract granting the buyer exclusive rights to purchase the property within a given timeframe (usually 56 days / 8 weeks, however please confirm seller’s required timescale)

• Paying the Exclusivity Fee ensures that the seller takes their property off the market as soon as the sale is agreed and reserves it exclusively for you.

• This prevents the risk of gazumping

• helps you avoid losing money and wasting time which most buyers like you may face with the traditional estate agent’s approach.

• You get a fixed exclusivity period (approximately 8 weeks) to complete, safe in the knowledge that you will not be gazumped or outbid by another buyer.

Step 1 – Register your interest

Step 2 – Sort out your finances / Carry out your due diligence/ Ask questions/ Get legal/ financial advice if required. Request & review the property pack. You are advised to get legal advice prior to offering on the property.

Step 3 – Arrange a viewing (If you require a viewing. If you do not require a viewing and offer without a viewing, you are doing so at your own risk)

Step 4 – Make an offer

Step 5 – Secure your purchase using our buy and Secure It Now Exclusivity package

Step 6 – Exchange and completion

Next Steps – Do Not Miss Out –

IMPORTANT NOTES

Buyers should carry out their own due diligence/ investigations and if required seek independent legal/ financial advice.

The Exclusivity fee is a non-refundable fee and unless otherwise stated and agreed in the special conditions of the Exclusivity Agreement, this is unconditional, not subject to survey or valuation , lending or anything else. The fee is not subject to a cooling off period and is non-refundable save in accordance with the terms stated in the exclusivity agreement

Buyers should carry out their own due diligence/ investigations and if required seek independent legal/ financial advice prior to entering the exclusivity agreement.

MONEY LAUNDERING REGULATIONS – Intending purchasers will be asked to produce identification documentation at a later stage and we would ask for your co-operation in order that there will be no delay in agreeing the sale. 2: These particulars do not constitute part or all of an offer or contract. 3: The measurements indicated are supplied for guidance only and as such must be considered incorrect. 4: Potential buyers are advised to recheck the measurements before committing to any expense. 5: All descriptions, dimensions, references to condition and necessary permission for use and occupation, and other details are given without responsibility and any intending purchasers or tenants should not rely on them as statements or representations of fact but must satisfy themselves by inspection or otherwise as to the correctness of each of them; 6: No persons in the employment of The OPA has any authority to make or give any representation or warranty whatever in relation to this property. No services, fixtures, fittings or appliances, including central heating, have been tested by the Agent at the time of printing. All references to parts of the fabric, material, decoration, external or internal features or grounds of the property are made without any warranty as to their conditions or effectiveness. Where definite checks have been made, such results will be made clear at the appropriate place in the particulars of sale. Every effort has been made by the Agents to obtain accurate information from the correct sources. However, intending purchasers and other readers are asked to make their own arrangements regarding verification of any statements expressed in these particulars of sale.

Any reference to, or use of any part of the property is not a statement that any necessary planning, building regulations or other consent has been obtained. All photographs shown are indicative and cannot be guaranteed to represent the complete interior scheme or items included in the sale. No person in our employment has any authority to make or give any representation or warranty whatsoever in relation to this property.

Misrepresentation Act 1967: The OPA for themselves and for the vendors or lessors of this property whose agents they are, give notice that: (1) These particulars do not amount to, nor amount to any part of, an offer or contract. (2) None of the statements contained in these particulars should be relied on as statements or representations of fact, therefore all prospective purchasers or tenants must satisfy themselves as to their accuracy.

Contact Information

View Listings

Enquire About This Property

Similar Listings

Compare listings

Compare
The Online Property Agency
Privacy Overview

This website uses cookies so that we can provide you with the best user experience possible. Cookie information is stored in your browser and performs functions such as recognising you when you return to our website and helping our team to understand which sections of the website you find most interesting and useful.