Under Offer
40 Bed Hotel Conversion Opportunity
40 Bed Hotel Conversion Opportunity, Walsall, WS1 1SY
  • Offers Over £359,999

Overview

Property ID: HZ29864111
  • 40
  • Bedrooms
  • 0
  • Bathroom

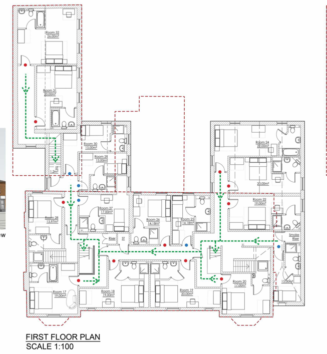
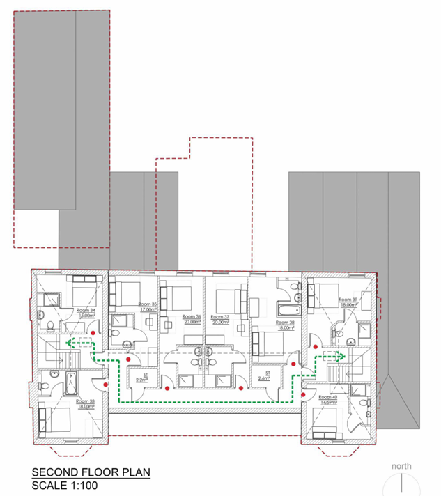
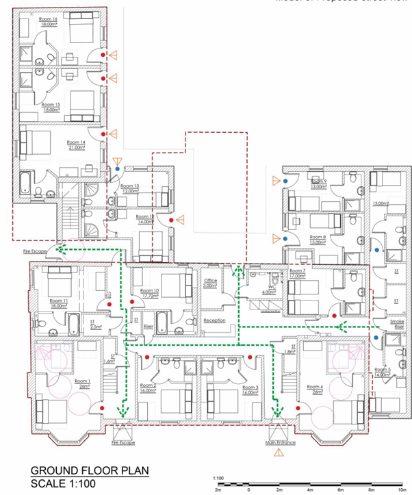
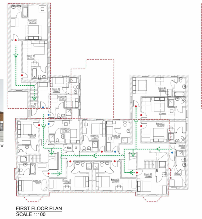
Floor Plans

image

Description:

image

Description:

image

Description:

image

Description:

Description

**PLANNING FOR CONVERSION TO 40 BED HOTEL**

Description

OPA are pleased to present this property comprising of a prominent double fronted part three storey building which we understand was previously used as offices and surgery and stands on an approximately rectangular shaped site extending to circa 0.24 acres (0.1 hectares). The property is considered suitable for a wide variety of alternative uses including wholesale development of the site. The current owners have previously obtained planning permission for a 40 bedroom budget hotel, and may be suitable for a HMO provider.

Accommodation

It is a prominent freehold property located in the heart of Walsall Town Centre. The building was formerly used as office accommodation and a medical surgery, offering well-proportioned internal space arranged over multiple levels. The existing layout provides flexible accommodation that is well suited for conversion or redevelopment, subject to planning. Planning permission has been granted for a 40-bedroom hotel, highlighting the adaptability and development potential of the property. The accommodation can also lend itself to residential or mixed-use schemes, depending on future requirements.

Planning

Application Number: 23/0813

CHANGE OF USE OF THE EXISTING THREE-STOREY BUILDING FROM OFFICES (E (c)USE CLASS)) INTO A HOTEL (C1 USE CLASS) FOR UP TO 40NO. BEDROOMS INCLUDING THE ERECTION OF TWO-STOREY SIDE AND REAR EXTENSIONS, ALTERATIONS TO THE RIDGE LEVEL HEIGHT FOR THE INTRODUCTION OF DORMER WINDOWS AND ASSOCIATED CAR PARKING PROVISION TO THE REAR.

Location

Occupying a prominent town centre position to the eastern side of Lichfield Street within a popular mixed commercial environment with professional offices, retail, restaurant and pubs. There is a large Morrisons food store to the rear of the property.

Walsall is market town located approximately 9 miles northwest of Birmingham, 7 miles east of Wolverhampton, and 9 miles from Lichfield, it benefits from excellent access to the national motorway network via junction 10 of the M6 motorway.

Services

Mains services are understood to be available in the vicinity of the site, but prospective buyers should make their own independent enquiries as to the suitability of services for their particular requirements.

Ground Conditions and Contamination

Prospective buyers must undertake their own investigations with regard to ground conditions and contamination and fully satisfy themselves as to the suitability of the site for any use they may propose.

Tenure

The property is freehold and is being sold with vacant possession.

Viewings

Please contact The OPA for viewings.

Material Information

The OPA have taken reasonable precautions and exercised all reasonable due diligence by asking the Seller of the Property to provide us in writing a declaration of material information regarding a property to comply with the Consumer Protection from Unfair Trading Regulations 2008. However, certain information may be unavailable/unknown. Any buyer must carry out their own due diligence and rely on their own searches, investigations and enquiries in respect of all matters relating to their proposed purchase of this property, to enable them to make an informed transactional decision before proceeding and entering into the exclusivity agreement on this property.

EPC

EPC –E

Material/Construction

Standard construction

Parking

Car Park

Any restrictive covenants, any easements, servitudes, wayleaves, any public rights of way across property or boundaries

Refer to property pack.

Any flooding in last 5 years

Not known

Is the property listed?

No

Property Accessibility – any step free access inc. ramps/lifts?

No

Any wet room/level access shower?

No

Is the property known to be on a coalfield/mining or directly impacted by effect of other mining activity?

Not known

Leasehold Properties only (lease length)

N/A

Leasehold Properties only (Ground Rent)

N/A

Leasehold Properties only (Service Charge)

N/A

Any other material information – information that may affect the average consumer’s decision making

Refer to pack.

Agent Notes

Draft details, awaiting vendor approval.

Buyers Fee

Buyer’s Fee of 2% of the Purchase Price, subject to Minimum Fee £3,999 (whichever is greater). All fees inclusive of VAT. T&Cs apply.

Please request Information Pack, Buyer’s Guide & FAQs.

You will be required to enter an “Exclusivity Agreement” with the Seller, granting you, the Buyer, the Exclusive right to purchase the property within the exclusivity period.

Please note the Buyer’s Fee is a non-refundable unconditional Exclusivity Fee in addition to the purchase price payable to the Agent upon offer acceptance. The fee is not subject to a cooling off period and is non-refundable save in accordance with the terms stated in the exclusivity agreement.

Upon offer acceptance you will not be required to exchange contracts, but will be granted an “exclusivity period” in order to exchange and complete on the transaction. This timescale is generally eight weeks, but this will be specified in the Exclusivity Agreement (please note, we may be able to negotiate the timeframe, so please discuss with your OPA representative).

This is a flexible and buyer friendly method of purchase. By signing the Exclusivity Agreement and paying the Buyer’s Fee, this secures the transaction and takes the property off the market. By paying your fee, that amount may be considered as part of the chargeable consideration for the property and be included in the calculation for stamp duty land tax liability.

The OPA’s “Secure It Now Exclusivity Package” – this is a legally binding agreement between you and the seller. When the offer is accepted, the buyer pays the Exclusivity Fee to the Agent and enters into an “Exclusivity agreement with the Seller”, granting the buyer an exclusivity period, which is usually up to 8 weeks to complete on the purchase of the property. During the exclusivity period, the buyer has the exclusive right to purchase the property, no other offers can be accepted, and during this period the buyer must complete the sale transaction. If the buyer fails to complete in this period, the fee is non-refundable.

This property is being offered under The OPA’s “Secure It Now Exclusivity Package”

This is an innovative secure and straightforward way to purchase this property.

Here are the benefits for you:

Secure your dream property straight away

Similar to a “normal” or “conventional” sale with a few measures to protect the buyer and the seller

No competitive bidding

No risk of being gazumped

Minimises risk of fall throughs

Secure It Now Exclusivity Package – How does it work?

You can now secure the purchase with a buyer’s “Secure It Now Exclusivity Agreement”. By entering into the exclusivity agreement and paying the Exclusivity Fee, this buys:

A legally binding contract granting the buyer exclusive rights to purchase the property within a given timeframe (usually 56 days/8 weeks, however, please confirm seller’s required timescale).

Paying the Exclusivity Fee ensures that the seller takes their property off the market as soon as the sale is agreed and reserves it exclusively for you.

This prevents the risk of gazumping.

Helps you avoid losing money and wasting time which most buyers like you may face with the traditional estate agent’s approach.

You get a fixed exclusivity period (approximately 8 weeks) to complete, safe in the knowledge that you will not be gazumped or outbid by another buyer.

Steps to Purchase

Step 1 – Register your interest.

Step 2 – Arrange your finances, carry out your due diligence, ask questions, get legal/financial advice if required. Request and review the property pack. You are advised to get legal advice prior to offering on the property.

Step 3 – Arrange a viewing (if you require a viewing). If you do not require a viewing and offer without a viewing, you are doing so at your own risk.

Step 4 – Make an offer.

Step 5 – Secure your purchase using our buy and Secure It Now Exclusivity package.

Step 6 – Exchange and completion.

Next Steps – Do Not Miss Out:

Important Notes

Buyers should carry out their own due diligence/investigations, and if required seek independent legal/financial advice.

The Exclusivity fee is a non-refundable fee and unless otherwise stated and agreed in the special conditions of the Exclusivity Agreement, this is unconditional, not subject to survey or valuation, lending or anything else. The fee is not subject to a cooling off period and is non-refundable save in accordance with the terms stated in the exclusivity agreement.

Buyers should carry out their own due diligence/investigations and if required seek independent legal/financial advice prior to entering the Exclusivity Agreement.

Money Laundering Regulations

1. Intending purchasers will be asked to produce identification documentation at a later stage and we would ask for your co-operation in order that there will be no delay in agreeing the sale.

2. These particulars do not constitute part or all of an offer or contract.

3. The measurements indicated are supplied for guidance only, and as such must be considered incorrect.

4. Potential buyers are advised to recheck the measurements before committing to any expense.

5. All descriptions, dimensions, references to condition and necessary permission for use and occupation, and other details are given without responsibility, and any intending purchasers or tenants should not rely on them as statements or representations of fact but must satisfy themselves by inspection or otherwise as to the correctness of each of them.

6. No persons in the employment of The OPA has any authority to make or give any representation or warranty whatever in relation to this property. No services, fixtures, fittings or appliances, including central heating, have been tested by the Agent at the time of writing. All references to parts of the fabric, material, decoration, external or internal features or grounds of the property are made without any warranty as to their conditions or effectiveness. Where definite checks have been made, such results will be made clear at the appropriate place in the particulars of sale. Every effort has been made by the Agents to obtain accurate information from the correct sources. However, intending purchasers and other readers are asked to make their own arrangements regarding verification of any statements expressed in these particulars of sale.

Any reference to, or use of any part of the property is not a statement that any necessary planning, building regulations or other consent has been obtained. All photographs shown are indicative and cannot be guaranteed to represent the complete interior scheme or items included in the sale. No person in our employment has any authority to make or give any representation or warranty whatsoever in relation to this property.

Misrepresentation Act 1967

The OPA for themselves and for the vendors or lessors of this property whose agents they are, give notice that:

(1) These particulars do not amount to, nor amount to any part of, an offer or contract.

(2) None of the statements contained in these particulars should be relied on as statements or representations of fact, therefore all prospective purchasers or tenants must satisfy themselves as to their accuracy.

Contact Information

View Listings
AJ Ali BA (Hons)

Enquire About This Property

Similar Listings

Compare listings

Compare
AJ Ali BA (Hons)
  • AJ Ali BA (Hons)
The Online Property Agency
Privacy Overview

This website uses cookies so that we can provide you with the best user experience possible. Cookie information is stored in your browser and performs functions such as recognising you when you return to our website and helping our team to understand which sections of the website you find most interesting and useful.